Nhà container vận chuyển tiếp tục phổ biến trên toàn thế giới. Nhiều kiến trúc sư cũng thực hiện các thiết kế liên quan đến khái niệm ngôi nhà này. Có nhiều lý do khiến nhà container trở nên phổ biến. Bải viết hôm nay, hãy cùng Hưng Phát đi khám phá thiết kế nhà container 2 tầng ven biển đẹp mê hồn các bạn nhé!
Lý do nên sở hữu 1 căn nhà bằng container

1- Nhà container tiết kiệm chi phí
Nhà container thường được làm từ các container vận chuyển tái chế, có nghĩa là chúng có giá rất phải chăng.
2- Nhà container vận chuyển thân thiện với môi trường
Nhà container được làm từ vật liệu tái chế, có nghĩa là chúng có tác động môi trường nhỏ hơn so với nhà truyền thống. Ngoài ra, nhà container thường rất tiết kiệm năng lượng vì chúng được cách nhiệt tốt và có thể được trang bị các tấm pin mặt trời và các tính năng xanh khác.
3- Kích cỡ khác nhau
Container vận chuyển có nhiều kích cỡ khác nhau; điều này có nghĩa là chúng có thể được sử dụng để tạo ra những ngôi nhà có đủ hình dạng và kích cỡ. Ngoài ra, nhà container có thể dễ dàng tùy chỉnh để đáp ứng nhu cầu cụ thể của chủ nhà.
4- Container vận chuyển siêu bền
5- Nhà container có hình ảnh cực phong cách
Có thể xây dựng một ngôi nhà một tầng hoặc nhiều tầng theo lựa chọn của bạn với các container vận chuyển.
Đôi khi có thể khó tạo ra mô hình ngôi nhà mà bạn có trong đầu một cách dễ dàng và rẻ tiền bằng các phương pháp truyền thống. Nhưng với thùng vận chuyển, bạn có thể tạo bất kỳ thiết kế nào bạn muốn một cách dễ dàng và phong cách. Rõ ràng những ngôi nhà container có một sức hút khiến họ mê mẩn.
Thiết Kế Nhà Container 2 tầng ven biển
Hôm nay chúng ta hãy xem một container vận chuyển 40 ft được thiết kế thành ngôi nhà container bởi kiến trúc sư Muhammad Nabeel.

Có 2 ban công trong thiết kế nhà container
Thiết kế của ngôi nhà container dựa trên một container vận chuyển 40ft. Ở tầng trên, có một phòng ngủ với mái dốc được nâng lên bằng các phụ kiện kim loại.
Phòng ngủ gác xép dốc

Phòng ngủ được thiết kế từ 1 vỏ công ten nơ cắt vát. Việc này giúp khi trời mưa lượng nước mưa không tồn đọng trên mái làm giảm tuổi thọ của căn nhà. Đồng thời tạo điểm nhấn cho ngoại thất nhà khi nhìn từ xa.
Sơ đồ nhà container ven biển

Một đặc điểm của ngôi nhà mái dốc này là khi trời mưa, nước chảy xuống mái dốc có thể được thu vào bể chứa nước cao 10 ft được che giấu trên nóc phòng bếp dưới tầng 1. Điều này giúp chủ nhà có 1 bể nước mưa tự nhiên. Sau đó họ sử dụng hệ thống lọc để tạo ra nước sạch sử dụng trong sinh hoạt hàng ngày. Từ đó tiết kiệm chi phí và bảo vệ môi trường.

Toàn cảnh căn nhà container nhìn từ trên xuống
>>> Xem thêm : Nhà container từ vỏ cont lạnh 20ft xinh xắn mới nhất 2023
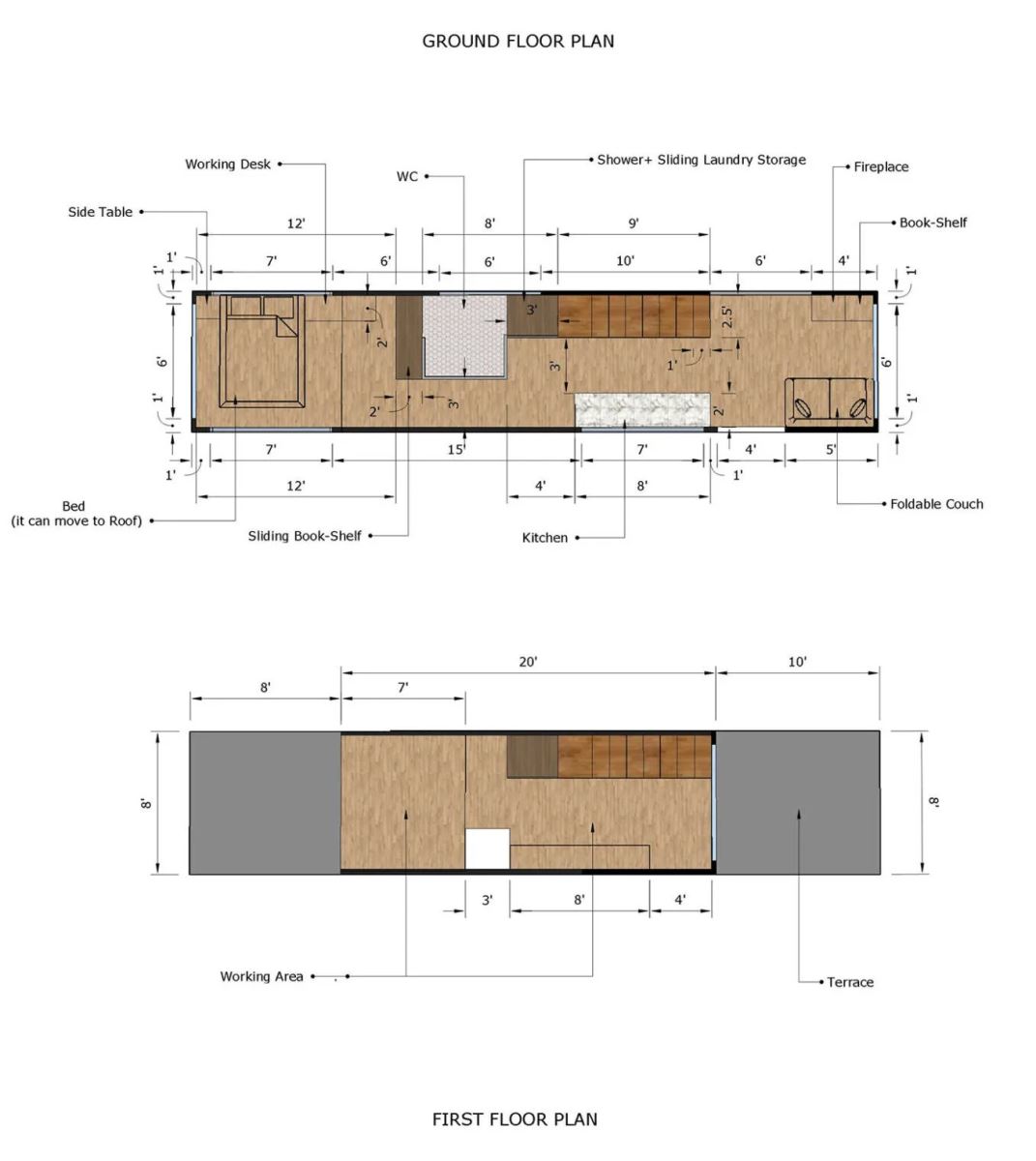
Sơ đồ nhà container chi tiết

Sơ đồ bố trí công năng 2 tầng của căn hộ

Nếu bạn đang nghĩ đến việc sống trong một ngôi nhà container, hãy nhớ xem bộ sưu tập thiết kế khổng lồ của Container Hưng Phát để lấy cảm hứng. Bạn chắc chắn sẽ tìm thấy thứ gì đó phù hợp với nhu cầu và sở thích của mình.
Vì vậy, nếu bạn muốn tìm hiểu thêm về các công-ten-nơ vận chuyển đã qua sử dụng , hãy nhớ liên hệ với chúng tôi ngay khi có nhu cầu.
>>> Xem thêm : Cách tái chế 8 vỏ container cũ thành nhà container siêu đẹp – Bạn phải xem cái này!



![10+ mẫu nhà container đẹp trên thế giới [mới nhất 2025]](/Data/images/baiviet/10-mau-nha-container-dep-tren-the-gioi-moi-nhat-2025-12252.jpeg)







